6 locali in vendita

Prato, Via Ciliani - Chiesanuova
€ 449.000
6 locali 6 locali
200 Mq 200 Mq
3 bagni 3 bagni

6 locali in vendita

Prato, Via Ciliani - Chiesanuova

Descrizione annuncio

Sacrocuore - Via Ciliani



NOSTRA ESCLUSIVA - In contesto residenziale ed esclusivo, proponiamo in vendita un appartamento posto al secondo e ultimo piano in costruzione Sabbi degli anni 90'.

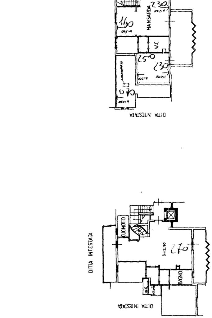
L'immobile si sviluppa su due livelli:
ad accoglierci è l'ingresso direttamente nella zona living in open space con rifiniture di pregio e doppia esposizione;
Ad arricchire la zona giorno sono i due terrazzi di cui uno con accesso dal salotto e l'altro con accesso dalla sala da pranzo, quest'ultima accessoriata sia di cucinotto che di ripostiglio.

Il disimpegno ci conduce nella zona notte dove troviamo la camera da letto matrimoniale e la camerina, completano la zona i doppi servizi, di cui uno con vasca e uno con box doccia.

A rendere accogliente e raffinato l'immobile è la pavimentazione in parquet e in marmo.

E' proprio la scala a vista che ci conduce al piano mansarda, dove è stata creata una zona giorno confortevole fornita di cucina e forno, a rendere unico l'ambiente è il camino e l'accesso al terrazzo abitabile.

A valorizzare la mansarda è la camera da letto con accesso anch'essa al terrazzo e il terzo servizio dell'immobile finestrato con vasca.

Completa il piano mansardato una comoda soffitta con tre spazi attualmente utilizzati come studio, ripostiglio e zona lavanderia.


Al piano seminterrato accessibile tramite ascensore è presente il garage doppio.

L'immobile si presente in buone condizioni.

Il riscaldamento è autonomo ed è presente l'aria condizionata.

Per ricevere maggiori informazioni e/o fissare un appuntamento contattateci
allo 0574.726765 o scriveteci via e-mail a pocn0

Mostra tutto

Nelle vicinanze

Trasporto pubblico Trasporto pubblico
stazione di Prato Centrale
stazione di Prato Centrale
1,9 Km
Ciliani 72
Ciliani 72
50 m
Zucca 23/N
Zucca 23/N
130 m
stazione di Prato Porta al Serraglio
stazione di Prato Porta al Serraglio
880 m
Prato Borgonuovo
Prato Borgonuovo
1,4 Km
Ricariche auto elettriche Ricariche auto elettriche
Estra Galilei
860 m
Parcheggio Serraglio
910 m
Estra Mercatale
1,4 Km
Estra Parcheggio Piazza dei Macelli
1,5 Km
Estra Martini
1,7 Km
Scuole Scuole
Scuole
250 m
Scuola Primaria Statale Puccini-Bartolini
730 m
Liceo Scientifico/Linguistico Carlo Livi
770 m
Polo Universitario Città di Prato
820 m
Scuola Primaria - "F. De Andrè"
1,1 Km
Farmacia Farmacia
Para Farmacia ZhongHua
740 m
Farmacia Etrusca
850 m
Farmacia
1,1 Km
Farmacia Santa Maria della Pietà
1,2 Km
Farmacia di Filettole
1,2 Km
Ospedali Ospedali
Casa di cura Villa Fiorita
1,8 Km
Ospedale Santo Stefano
2,3 Km
Pronto Soccorso Ospedale "Santo Stefano"
2,3 Km
Supermercati Supermercati
Supermercati Coop
650 m
Alimentari Wenzhou family
720 m
incoop
740 m
Union City
780 m
Digg Hao
810 m
Negozi Negozi
Panificio Bartolini
610 m
Coppini Sport
720 m
Nuova Gioia Abbigliamento
730 m
Z. Brand Abbigliamento
740 m
SPGJ Abbigliamento
740 m
Bar Bar
Bin Bin
850 m
Pasticceria Aiazzi
860 m
Le Barrique Wine Bar
1,2 Km
Pasticceria Nuovo Mondo
1,2 Km
Fumo & Caffé
1,2 Km
Ristoranti Ristoranti
Fantastico
570 m
Ravioli Liu
760 m
Wu Mei
770 m
Don Chisciotte
770 m
Hong Kong
770 m
Mostra tutto

Caratteristiche

Rif.:
61124997
Piano:
2 di 2 con ascensore (ultimo Piano)
Box:
1
Terrazzi:
3
Camere da letto:
3
Arredamento:
Assente
Mostra tutto
Prezzo Prezzo
€ 449.000
Rata mutuo Rata mutuo
€ 2.128 / mese
Spese annue Spese annue
€ 1.800
Proponi il tuo prezzoProponi il tuo prezzo

Classe Energetica

F
F
F
F
F
F
F
F
F
EP globale non rinnovabile:
136.00 kW h/m² anno
EP globale rinnovabile:
136.00 kW h/m² anno
EP invernale del fabbricato:
EP estiva del fabbricato:
Anno di costruzione:
1990
Riscaldamento:
Autonomo
Tipo impianto:
A radiatori
Tipo alimentazione:
Metano

Ti interessa visionare l'immobile?

Fissa un appuntamento  Fissa un appuntamento

Richiedi informazioni

Clicca su Leggi per aprire l'informativa
* Questi campi sono obbligatori

Calcola il tuo mutuo

Semplice e senza impegno
Anticipo

( % )
Mutuo

( % )

pochi semplici passi

inserisci i tuoi dati
Questionario completato
Grazie per aver richiesto un appuntamento senza impegno con un nostro Consulente del Credito e Assicurativo.

Hai inserito correttamente tutti i dati necessari e a breve riceverai una e-mail con un link da convalidare per inviare i tuoi dati.
Affiliato
Studio Chiesanuova Sas
Via Montalese, 39/41 59100 Prato (PO)

Il nostro staff


  • Teresa Paladino
    Affiliata

  • Anisa Toska
    Coordinatrice
Via Montalese, 39/41 59100 Prato (PO)
Zona: Chiesanuova-Ciliani-Sacrocuore-Precentro
Mostra su mappa
Affiliato
Studio Chiesanuova Sas
Via Montalese, 39/41 59100 Prato (PO)

2026 Tecnocasa Franchising S.p.A. - P. IVA 08365160152 - Via Monte Bianco 60/A 20089 Rozzano (MI). Ogni agenzia ha un proprio titolare ed è autonoma. Privacy policy | Policy utilizzo | Cookie policy