5 locali in vendita

Prato, Via Ciliani - Chiesanuova
€ 198.000
Prezzo aggiornato
5 locali 5 locali
100 Mq 100 Mq
1 bagno 1 bagno

5 locali in vendita

Prato, Via Ciliani - Chiesanuova

Descrizione annuncio

Via dei Ciliani


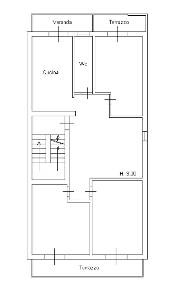
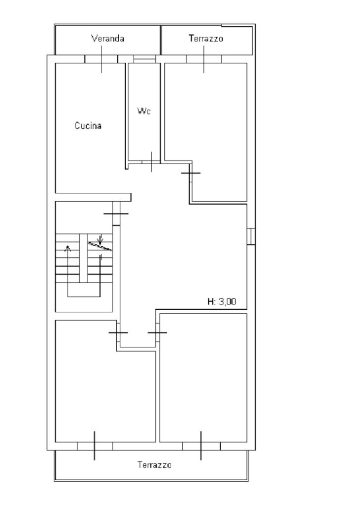
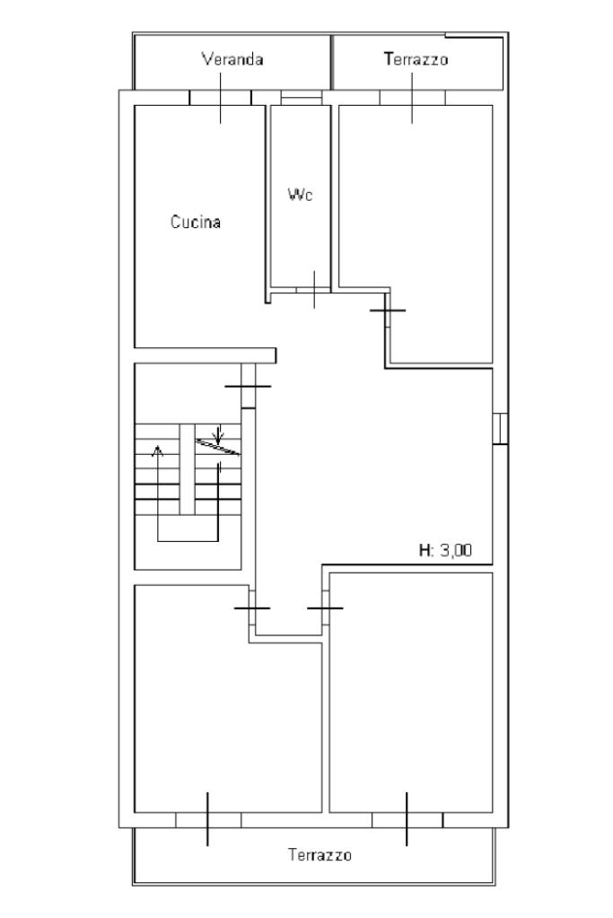
NOSTRA ESCLUSIVA - Proponiamo in vendita appartamento di cinque vani posto al terzo ed ultimo piano privo di ascensore in una tri-familiare.

La zona giorno è composta dal soggiorno e la cucina semiabitabile, quest'ultima con accesso ad un terrazzo.

Nella zona notte troviamo tre camere da letto matrimoniali con accesso a un ulteriore terrazzo.

Il bagno è finestrato con vasca.

Tutte le utenze sono autonome ed è presente l'aria condizionata.

L'immobile si presenta in buone condizioni.

Non vi è alcuna spesa condominiale.

Soffitta di proprietà.

Per ricevere maggiori informazioni e/o fissare un appuntamento contattateci
allo 0574.726765 o scriveteci via e-mail a pocn0

Mostra tutto

Nelle vicinanze

Trasporto pubblico Trasporto pubblico
stazione di Prato Centrale
stazione di Prato Centrale
2,2 Km
Ciliani 124
Ciliani 124
40 m
Sangro 58/D
Sangro 58/D
140 m
stazione di Prato Porta al Serraglio
stazione di Prato Porta al Serraglio
1,1 Km
Prato Borgonuovo
Prato Borgonuovo
1,2 Km
Ricariche auto elettriche Ricariche auto elettriche
Estra Galilei
1,1 Km
Parcheggio Serraglio
1,2 Km
Distributore Conad
1,6 Km
Estra Parcheggio Piazza dei Macelli
1,7 Km
Estra Mercatale
1,7 Km
Scuole Scuole
Scuole
100 m
Scuola Primaria Statale Puccini-Bartolini
780 m
Liceo Scientifico/Linguistico Carlo Livi
880 m
Scuola Associazione Culturale Linguistica Italo-Cinese
970 m
Polo Universitario Città di Prato
1,1 Km
Farmacia Farmacia
Para Farmacia ZhongHua
790 m
Farmacia Etrusca
820 m
Farmacia
1,3 Km
San Martino
1,4 Km
Farmacia Santa Maria della Pietà
1,4 Km
Ospedali Ospedali
Casa di cura Villa Fiorita
1,7 Km
Ospedale Santo Stefano
2,1 Km
Pronto Soccorso Ospedale "Santo Stefano"
2,1 Km
Supermercati Supermercati
Digg Hao
750 m
Market China
770 m
Alimentari Wenzhou family
770 m
Ortofrutta Zhang
820 m
Union City
840 m
Negozi Negozi
SPGJ Abbigliamento
770 m
Z. Brand Abbigliamento
770 m
Nuova Gioia Abbigliamento
770 m
Panificio Bartolini
830 m
Coppini Sport
960 m
Bar Bar
Bin Bin
870 m
Pasticceria Aiazzi
1,0 Km
Bar
1,1 Km
Exenzia
1,2 Km
Controsenso
1,4 Km
Ristoranti Ristoranti
Wu Mei
740 m
Hong Kong
770 m
Shi Wei Tian
770 m
Ravioli Liu
800 m
L'antilope
820 m
Mostra tutto

Caratteristiche

Rif.:
61141698
Piano:
3 di 3 (ultimo Piano)
Balconi:
2
Camere da letto:
3
Arredamento:
Assente
Condizionamento:
Autonomo
Mostra tutto
Prezzo Prezzo
€ 198.000
Rata mutuo Rata mutuo
€ 938 / mese
Spese annue Spese annue
€ 0
Proponi il tuo prezzoProponi il tuo prezzo

Classe Energetica

G
G
G
G
G
G
G
G
G
EP globale non rinnovabile:
175.50 kW h/m² anno
EP globale rinnovabile:
175.50 kW h/m² anno
EP invernale del fabbricato:
EP estiva del fabbricato:
Anno di costruzione:
1960
Riscaldamento:
Autonomo
Tipo impianto:
A radiatori
Tipo alimentazione:
Metano

Prezzo ridotto di €1 (8%%)

Ti interessa visionare l'immobile?

Fissa un appuntamento  Fissa un appuntamento

Richiedi informazioni

Clicca su Leggi per aprire l'informativa
* Questi campi sono obbligatori

Calcola il tuo mutuo

Semplice e senza impegno
Anticipo

( % )
Mutuo

( % )

pochi semplici passi

inserisci i tuoi dati
Questionario completato
Grazie per aver richiesto un appuntamento senza impegno con un nostro Consulente del Credito e Assicurativo.

Hai inserito correttamente tutti i dati necessari e a breve riceverai una e-mail con un link da convalidare per inviare i tuoi dati.
Affiliato
Studio Chiesanuova Sas
Via Montalese, 39/41 59100 Prato (PO)

Il nostro staff


  • Teresa Paladino
    Affiliata

  • Anisa Toska
    Coordinatrice
Via Montalese, 39/41 59100 Prato (PO)
Zona: Chiesanuova-Ciliani-Sacrocuore-Precentro
Mostra su mappa
Affiliato
Studio Chiesanuova Sas
Via Montalese, 39/41 59100 Prato (PO)

2026 Tecnocasa Franchising S.p.A. - P. IVA 08365160152 - Via Monte Bianco 60/A 20089 Rozzano (MI). Ogni agenzia ha un proprio titolare ed è autonoma. Privacy policy | Policy utilizzo | Cookie policy